【No.63】川西 売買


物件No.63 写真
![]() |
![]() |
![]() |
![]() |
![]() |
![]() |
![]() |
![]() |
![]() |
![]() |
![]() |
![]() |
| 所在地 | 湧水町川西372-1,372-2,372-3 | ||
| 区分 | 売買 | 価格 | 220万円 |
| 地目/地積 | 宅地,畑,山林 | 2296.32平方メートル | |
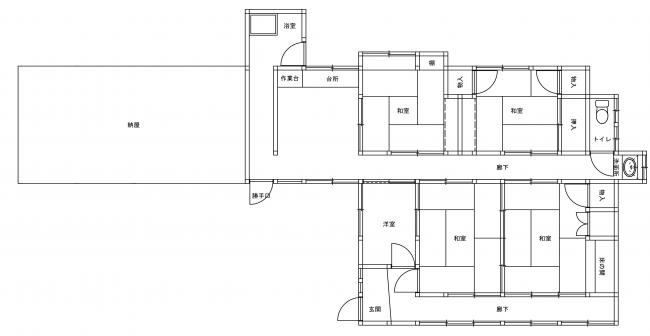
| 構造 | 木造瓦葺平家建 | 延床面積 | 79.33平方メートル |
| 建築時期 | 昭和42年 | 空き家となった時期 | 令和6年ごろ |
| 修繕の必要性 | 多少の修繕が必要 | 修繕の費用負担 | 入居者 |
| 設備 | 上水道 | 引き込み済み | 駐車場 | あり |
| 電気 | 引き込み済み | 庭 | あり | |
| ガス | プロパンガス | 物置 | あり | |
| 風呂 | インターネット | |||
| トイレ | 簡易水洗 | |||
| 備考 | ・宅地他,畑,山林の計3筆をまとめて売買希望です。 | |||
|
・広い敷地なので,駐車場以外の活用もできます。33平方メートルの大きな倉庫もあります。 |
||||
内覧問い合わせ先
株式会社ドリームジャパン Tel 0995(75)2616
取扱不動産 株式会社ドリームジャパン
地図の読み込みに関する問題が発生したとき<外部リンク>

















